Summit 476
Shell-only kits starting at $60,617
Model:
Standard Features
Size
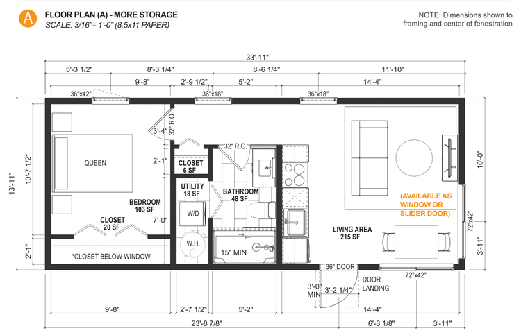
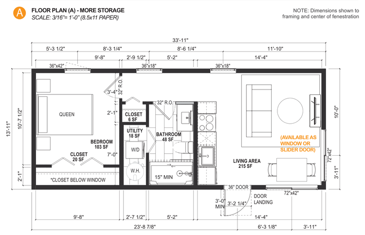
14' x 34'
476 square feet
1 Bed, 1 Bath
Structure
2x6 Framing and Zip System weatherproof wall panels
Engineered roof joists, 1/2" Plywood decking
26-gauge Galvalume corrugated metal roofing
FSC certified lumber
Standard foundation attachment hardware included
Doors & Windows
36" or 72" Therma-Tru full-lite fiberglass door
Optional 72" Marvin sliding glass door
Double-pane, high efficiency windows
Operable awning and glider style windows with screens
Fiberglass frames with two exterior color options
Siding
James Hardie fiber cement siding and soffit in multiple colors
Optional Galvalume metal wainscot
Natural Red Western Cedar plank wood siding available
Warranty
1 year manufacturer and workmanship warranty on all models. After 1 year, vendor specific warranties apply.
Living Package
LVT flooring
Electrical package
Baseboards
Batt insulation
Interior paint
Ductless mini-split for heating/cooling
Energy Recovery Ventilator (ERV)
Bath Package
Acrylic shower base & enclosure
Semi-frameless glass shower doors
Water-saving shower fixtures
High efficiency toilet
Wall mounted bathroom vanity
100% waterproof vinyl plank flooring
Energy code compliant water heater
Kitchen Package
24" full height refrigerator
24" electric range
18" dishwasher
Microwave/vent hood
Premium plywood cabinets in two finishes
Solid surface countertops in three finishes
Stainless steel sink workstation
Interior Package
Lifestyle Interior Package
A complete turnkey interior package — premium appliances, fixtures, and finishes carefully curated for modern living. Explore each item below to see what is included.
Additional Options
Window and Door Options
– 36" or 72" Therma-Tru full-lite fiberglass door
– 72" Marvin sliding glass door
– Multiple window configurations available
– Operable awning and glider style windows
Fully Equipped Interior
– LVT flooring throughout
– Complete electrical package
– Batt insulation (R-21 wall, R-38 roof)
– Interior drywall and paint
– Ductless mini-split HVAC
– Full kitchen with appliances
– Full bathroom with fixtures
– Energy Recovery Ventilator (ERV)
Shell Only Option
– No interior finishes
– No kitchen or bath
– Ideal for custom buildout
– Starting at $56,127
Our Partners
Ordering
Ordering a Studio Home Summit 476 model isn't only easy, it's fun. Design, customize, and order online with our 3D Design Center.
Design
Start crafting your design in our 3D Design Center.
Site Plan / Permitting
Check with your local building authorities.
Order
Once your design is complete place your order.
Ship
All Studio Homes arrive as a flat-packed panelized kit.
Assemble
Are you going to hire a contractor or DIY?
Enjoy!
You've done it! Kick back and enjoy the comfort of your backyard ADU.
DIY Assembly
This is a great option for the handy homeowner who enjoys a weekend project and wants to save money. Every DIY Studio Home purchase includes the same training resources that we share with our own ProAssembly network. Homeowner also could hire a trusted contractor to assemble and count on the same resources and training provided to our ProAssembly network.
Professional Assembly
Our ProAssembly network will take delivery of your Studio Home and assemble the kit of walls, roof and siding. Windows are pre-installed into the panels. Lifestyle interior also may be purchased for assembly in the field. Assemblers also typically quote site work and other adds like foundation/step/deck.
WHAT THEY SAY
I had the best experience with Studio Shed. Their customer service was outstanding. They patiently worked with me to find local installers that could also do a significant amount of site work in our yard and spent countless hours working on modifying the details of what we wanted our shed to have. Catherine in particular was outstanding to work with. Absolutely recommend Studio Shed!
— Tiffany V., Washington
I chose Studio Shed product because they deliver best quality and beautiful design! The entire process was seamless from start to finish. The shed is a beautiful work of art and the materials used are top notch. Studio Shed is the best at what they do. Thank you team!
— May C., Texas
Our studio shed experience was fantastic! From our visit to their factory, the shed design and the delivery and construction. We chose to finish the interior ourselves. I'm sure our capable crew would have done a great job there as well! Highly recommend!
— Rebecca T., North Carolina
Project Cost Calculator
Average costs for your backyard ADU or Studio.
